Leadership
Rachel Bardis: Building A New Blueprint For Community Living
A family legacy in homebuilding gave Rachel Bardis a foundation. Now, as COO of Somers West, she’s applying risk strategy, development grit, and a deep sense of purpose to Braden—an ambitious new master-planned community near Sacramento.
Rachel Bardis didn’t plan to build communities. She studied risk management and economics, aiming for a career in the analytical world of insurance or accounting. But when she tried it, it felt flat — static, detached, and far from the dynamic problem-solving she’d been steeped in growing up.
I didn’t understand why it was so boring,” she says now, laughing. “Then I realized, I was comparing it to the summers I’d spent working with my dad and uncle—out on sites, in meetings, solving real-world challenges. That’s when I knew: development was already in me.”
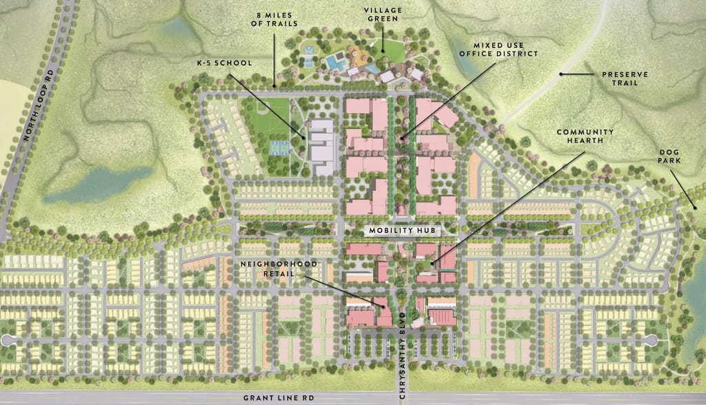
Today, Bardis is Chief Operating Officer of Somers West Development, where she leads the execution of Braden, a 2,667-acre, fully approved master-planned community outside Sacramento.
Planned in partnership with world-renowned planner Peter Calthorpe of HDR/Calthorpe, Braden represents a bold vision for complete community living that pushes the boundaries of innovation in sustainable design, work-life balance, and mobility. The groundbreaking marks the start of phase one, which is anchored by a 163-acre mixed-use Town Center that will serve as the heart of Braden. This phase will include over 900 diverse dwellings and approximately 966,000 square feet of commercial space, with an anticipated completion in July 2026. Upon full buildout, Braden will be home to up to 8,000 residences, 1.3 million square feet of commercial space, 35% dedicated open space, 75 miles of multi-use paths and bike lanes, 48 miles of trails, three anticipated elementary schools and a middle/high school.

She’s also one of the rare women holding a senior strategic and operational leadership role in the U.S. homebuilding industry—an industry where her family has left deep tracks.
With Braden, Bardis is helping reshape what a California community can be—not just in architecture or mix, but in how it works. It’s not a subdivision. It’s a new town, engineered for a 10-minute lifestyle, climate resilience, and human connection.
We’re trying to design out isolation,” Bardis says. “This isn’t about just placing homes on lots. It’s about reintroducing walkability, mixed-income integration, and daily interactions that people are missing.”
A Legacy of Learning by Doing
The Bardis name is well known in West Coast development circles. Her family has built more than 10,000 homes across California, Nevada, and Idaho. Bardis didn’t inherit her current role. She earned it the hard way—through the family’s tough-love initiation.
“My first real assignment was: here’s a tentative map—figure out what to do with it,” she says. “There was no soft landing. But I worked harder after college than I ever did in college. I read at night, made mistakes, called people the next day to fix them. And surprisingly, many people were willing to help.”
She eventually launched her own company, Corinthian Homes, building in both California and Idaho. The work was gritty. The learning curve was steep. But that early exposure to every part of the process—dirt to done—still grounds her leadership.
There are too many silos in this business,” Bardis says. “But when you understand the full lifecycle, you see risk differently. You manage better. You connect the dots.”
Braden’s Big Bet
Braden isn’t like other masterplans. Its goals are social, environmental, and economic. It aims to become a mixed-density, mixed-income, transit-connected community that supports aging parents, growing families, remote workers, and frontline employees—all within walking distance of parks, trails, stores, and schools.
That kind of design is rare, not because it’s a bad idea, but because it’s hard. Regulatory hurdles, infrastructure costs, commercial funding gaps, and resistance to change are real.
Still, Bardis and the team at Somers West are betting big.
We’ve all seen masterplans that talk about walkability or sustainability,” she says. “But the execution gets diluted. The streets are too wide. The uses get separated. You end up with something that doesn’t work the way it was promised.”
Braden is trying to hold the line — on design intent, on purpose, and on long-term livability.
It’s not just about the front-loaded garage anymore,” she says. “We want places where people bump into each other on the sidewalk, where seniors feel safe walking. Where teens feel seen. Where neighbors are more than faces behind a door.”
Risk, Resilience, and Reinvention
Bardis’ early education in risk management is her superpower in this phase of her career. Braden is complex. Thousands of rooftops surround it, but it’s starting from scratch. And it’s starting differently.
The first phase, which is now under grading, includes a Town Center, alley-loaded homes, and higher-density configurations that deviate from local norms.

Builders say they want lots,” she says. “But do they want our lots? These aren’t pull-off-the-shelf plans. This is a community meant to grow into something dynamic over time. That’s a risk.”
There’s also the regulatory dimension. Health, safety, wildfire protection, traffic planning—each layer adds complexity. Bardis doesn’t sugarcoat it. But she’s developed a leadership habit that works: bringing people together.
Once a quarter — and now more often — Somers West hosts “all hands” meetings with Sacramento County staff. Planners, engineers, fire officials, public works —they all get in the room, look at the same maps, and talk through the trade-offs.
You can’t solve these things from silos,” Bardis says. “When everyone sees the big picture, it changes the conversation.”
Walking the Talk
Bardis expects the finished lots will be ready by this time next year. The Town Center grading is underway, and off-site plans are out to bid. While that progress matters, it’s not the milestone she’s most focused on.
The hardest part isn’t dirt work,” she says. “It’s culture change. If we want this to be a walkable, mixed-use, inclusive community, we must start that from day one.”
She and the team are exploring pop-up events, creative commercial activations, and ways to bring early energy to the site before the full complement of rooftops is built.
You can’t tell people they’re part of something special,” she says, “and then make them wait five years to feel it.”
More Than a Project
For Bardis, Braden is more than a project. It’s a test of whether community development can still be personal, values-driven, and future-focused.
She thinks about her 17-year-old twins. Her aging parents. She sees loneliness at both ends of the generational spectrum. And she’s convinced that better design —not just housing — can help close that gap.
This isn’t just a job,” she says. “It’s a belief that where and how we live matters. If we can get this right, maybe it opens the door for others to try too.”
MORE IN Leadership
Homebuilders Face The Long “Muddle-Through” Economy
Moody’s Analytics Deputy Chief Economist Cristian deRitis kicked off Focus On Excellence in Denver with a clear-eyed view of a cooling—but not collapsing—economy. His message for homebuilding leaders: plan for a grind, not a rebound, as 2026–2030 take shape.
How Homebuilding Sales Became A Strategic Center Of Gravity
Dave Rice and New Home Star help turn homebuilder sales associates into data-powered business strategists and a linchpin to critical customer feedback. Here’s why that matters now more than ever.
Century Communities Keeps Control, Delivers In A Tough Quarter
Q3 performance spotlights cost control, strategic pricing, and buyer-first execution as Century Communities sets foundation for sustainable growth into 2026.
